919 EVA STREET, North Bay (Central)
Welcome to 919 Eva St, where thoughtful design, warm character…
$399,900
Realty Executives | North Bay & Area
Realty Executives | North Bay & Area
Realty Executives | North Bay & Area
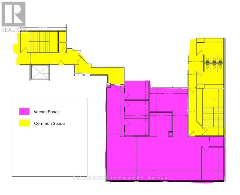
3RD FLR - 101 MCINTYRE STREET W, North Bay (Central), Ontario, P1B2Y5
Price On Call
Discover an exceptional opportunity to lease 2,500 sq. ft. of premium office space in one of North Bay’s most beautiful buildings. Ideally located in the heart of downtown, this impressive, well-maintained space offers a highly functional layout ideal for a variety of professional uses. A striking glass elevator adds to the building’s upscale character. The layout offers four spacious private offices, a large open workspace (current partitions will be removed) and two additional areas that can easily be enclosed to create another office or boardroom. Parking is a valuable downtown perk, with 5 dedicated parking spaces conveniently located directly across the street – ideal for staff or client use. Shared amenities include two washrooms maintained with the neighbouring tenant. Additional rent Includes: Property Taxes, Utilities, Security, Fire Safety, Repairs & Maintenance, Common Area Cleaning, Outside Maintenance – Snow Removal etc, Insurance. Don’t miss this rare opportunity to establish your business in a prime downtown location. (id:54164)
Welcome to 919 Eva St, where thoughtful design, warm character…
$399,900
ATTENTION SINGLE AND MULTI-GENERATIONAL FAMILIES! Welcome to 573 McLeod Street…
$499,000
Owning a home is a keystone of wealth… both financial affluence and emotional security.
Suze Orman