Realty Executives | North Bay & Area
Realty Executives | North Bay & Area
Realty Executives | North Bay & Area
5105 ROAD 164 ROAD, West Perth (Mitchell), Ontario, N0K1N0
$855,000
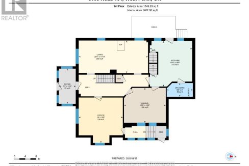
Rare, beautifully restored 1895 Victorian farmhouse set on a private 3/4 acre lot, surrounded by open farmland. This spacious home offers an abundance of room with 4 bedrooms and 2.5 bathrooms, blending timeless character with peaceful country living. Set in the peaceful hamlet of Kennicott, this home offers space, privacy, and timeless Victorian proportions, with original stained glass featured in select rooms. Behind the character, extensive system upgrades deliver true peace of mind, including a metal roof with lifetime warranty, electrical: seller advises knob & tube wiring has been removed, system upgraded over time, new drilled well with UV and filtration (2018), furnace, heat pump and A/C (2017), upgraded insulation, and new baseboard heaters with thermostats for efficient supplemental heat. Pellet stove installed in 2018 (WETT certified).Renovated kitchen (2020), updated bathrooms (2019-2025), and refreshed finishes make this a genuine move-in-ready property. Heated, spray-foam insulated basement with 7′ ceilings and garage access adds valuable usable space and awaits your finishing touches-ideal for an in-law suite, games room, or bonus living area. Unique about this home is the ample storage space throughout. Oversized double garage, refurbished porches, deck, well-maintained gardens, and a fenced enclosure complete this rare offering. Many amenities surround this home, including G to G trails, campgrounds, a dog park, community centre, and more. Approx. 25 minutes to Stratford and Listowel and an hour to Kitchener-Waterloo and London. (id:54164)
Welcome to 3274 Percy, in one of Val Caron’s preferred…
$595,000
Welcome to this super clean, move-in ready home offering immediate…
$379,900
Owning a home is a keystone of wealth… both financial affluence and emotional security.
Suze Orman