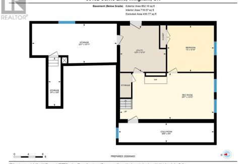
86132 CURRIE LINE, North Huron (East Wawanosh) - Laframboise Team Ontario P1B

Compare Properties

Compare
You can only compare 4 properties, any new property added will replace the first one from the comparison.

Compare Properties

Compare
You can only compare 4 properties, any new property added will replace the first one from the comparison.

MLS